Exklusive 3.5 Zimmer Maisonette mit Dachterrasse in Basel
Ein Raum für Freigeister. Diese Maisonette-Eigentumswohnung auf zwei Ebenen vereint Loftfeeling mit Privatsphäre. Die Dachterrasse bietet Weitblick und Platz für den eigenen Rückzugsort im Freien. Die grossen Fenster bringen viel Licht. Perfekt für Kreative, Paare, Familien oder Life-Sciences Professionals, die das Besondere suchen – nahe des Switzerland Innovation Park Basel Area.
Keyfacts
- Maisonette und Dachterrasse
- 3,5 Zimmer
- 94.96 m² Wohnfläche
- 9.7 m² Dachterrasse
- Stilvolle Ausstattung wie Wandpanelen aus Mooreiche
- Edles Fischgrätparkett in geölter Eiche
- Helle großzügige Flächen, raumhohe Türen
- Designerküche inkl. Garderobenschränke
- Italienisches Feinsteinzeug und hochwertige Armaturen
Hochwertige Ausstattung, unaufgeregte Architektur
Die Ausstattung sorgt für zeitlose Eleganz. Sie bietet einen Rückzugsort, der höchsten Wohnansprüchen gerecht wird. Die Architektur steht für nachhaltige Bauqualität und ein unvergleichlich gesundes Raumklima. Große Fenster mit Dreifach-Isolierverglasung lassen reichlich Tageslicht herein und vermitteln ein Gefühl von Schutz und Geborgenheit. Elektrische Jalousien und die effiziente Fußbodenheizung umhüllen Sie in jeder Jahreszeit mit angenehmer Behaglichkeit. Edles Eichenparkett im Fischgrätmuster bringt Wärme und Raffinesse in jeden Raum. Ein Ort, der Harmonie ausstrahlt und in dem Nachhaltigkeit, Stil und Komfort zu einem außergewöhnlichen Lebensgefühl verschmelzen.
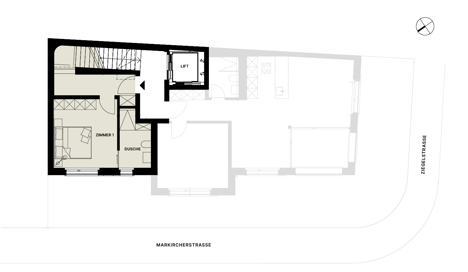
Wohnung 05


- Maisonette über zwei Ebenen
- Loftfeeling mit großzügigem Raumgefühl
- Dachterrasse mit Weitblick
- Rückzugsort im Freien
- Verbindung von Offenheit und Privatsphäre
- Ideal für Kreative, Paare, Familien oder Life-Sciences Professionals
- Individuelles Wohnen mit Charakter
- Nähe zum Switzerland Innovation Park Basel Area
Urbane Lage,
international und
optimal angebunden
Wohnen im aufstrebenden Innovationsquartier von Basel. Switzerland Innovation Park Basel Area. Das Bachgraben-Hegenheimermattweg-Allschwil-Gebiet (Basel West) ist der Hotspot für Life-Sciences, Entwicklung und moderne Infrastruktur - ein innovativer Ort um auch genau hier hochwertig zu leben. Nur wenige Minuten zu den Top-Arbeitgebern der Life-Science-Bio-Tech-Branche, sowie einem Startup Hub in einer Region mit dynamischem Wachstum und hoher Lebensqualität. Die attraktive Lage ist ein Ort für Life-Sciences-Experten, Familien und Senioren. Urban, gut angebunden und sehr naturnah zugleich.


Entfernungen
- Autobahnanschluss zur A3: 2 km
- Tramstation / Bus: 150 m
- Innenstadt: 3 km
- Felix Platter Spital Basel: 250 m
- Universitätsspital Basel: 2 km
- Flughafen Basel Mulhouse: 5 km
- Grenznähe zu Frankreich und Deutschland
Naherholung
Trotz wirtschaftlicher Dynamik ist das Gebiet sehr grün und bietet viele Freizeitmöglichkeiten und Naherholung
- Sport- und Freizeitpark
- Bachgraben-Park
- Gartenbad Bachgraben
- Allschwiler Wald
Im direkten Umfeld
Die direkte Nahversorgung durch Einzelhandel und Supermärkte, Shopping und Restaurants ist umfassend gegeben.
Jetzt vormerken
Wir freuen uns auf Ihre Nachricht
Der Verkaufsstart ist erfolgt – und nur fünf Einheiten sind verfügbar.
Ein Ort mit Substanz. Für heute. Für morgen.
„Wir schaffen Lebensräume, in welchen Design, Funktion und Gefühl miteinander leben“
Romeo Nazzari
Projektträger & Bauherr von SUMITRA